24小时电话
025-86902171
首页推荐
装修设计
设计大咖
案例作品
视频作品
装修攻略
热点楼盘
主材产品
全屋定制品类
官方合作品类
精装软装设计
施工交付
精湛工艺
施工体系
项目团队
工地参观
家装服务
装修流程
放心行动
关于我们
关于我们
为什么选择我们
联系我们
预约服务
首页
案例作品
中冶·锦绣公馆丨120㎡全案设计预案
中冶·锦绣公馆丨120㎡全案设计预案
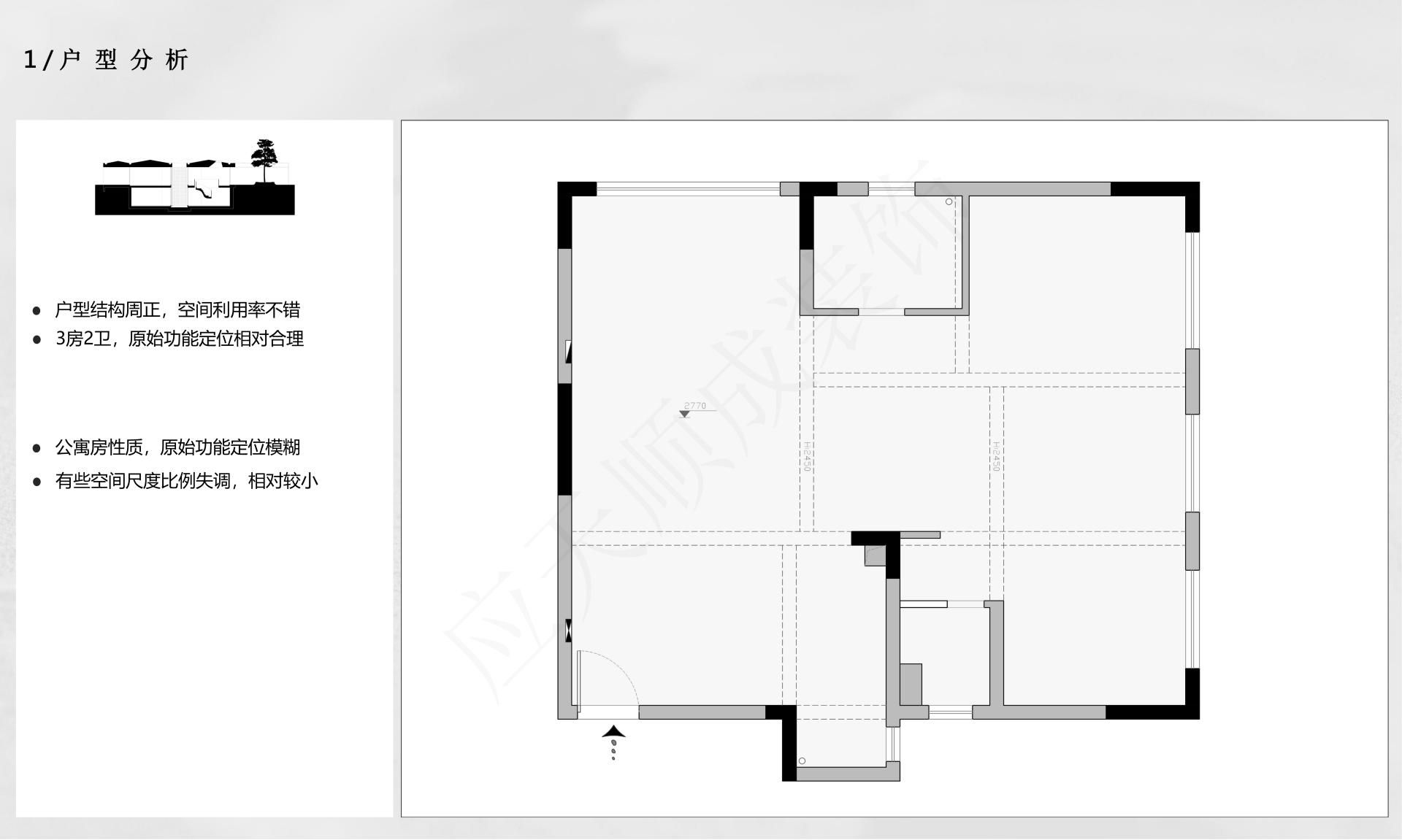
户型:平层
风格:未知
面积:160平米以下
阅读:83次
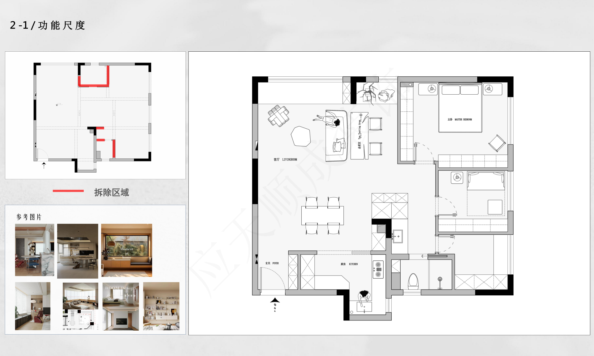
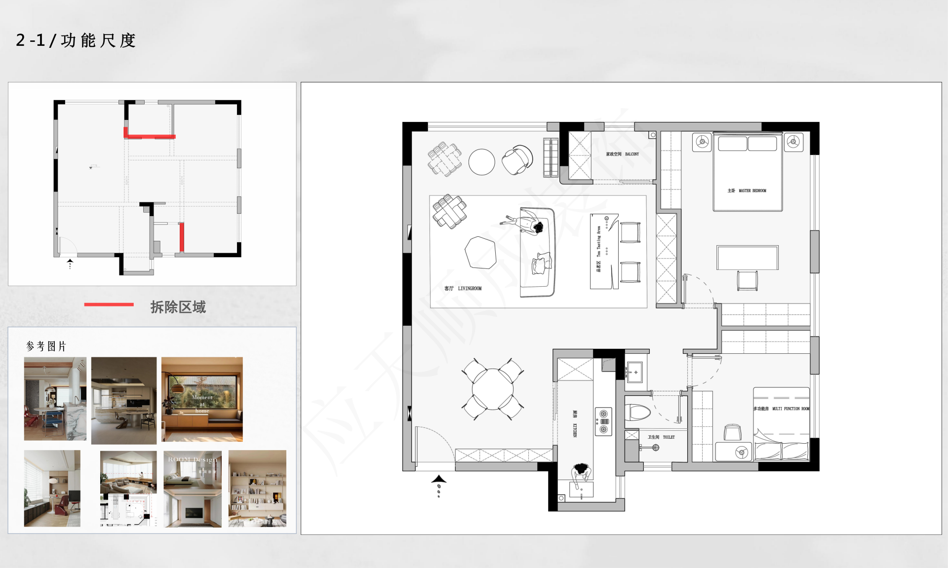
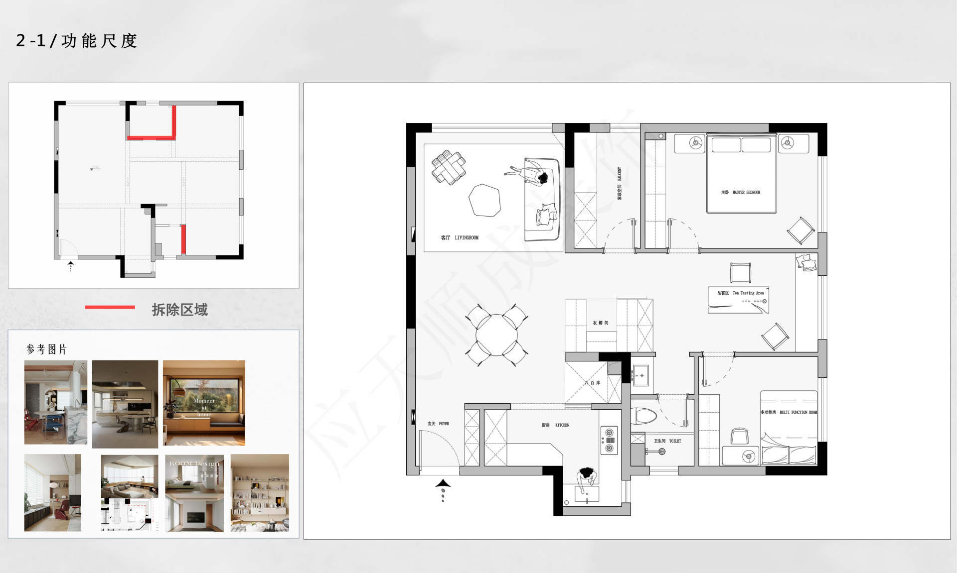
中冶·锦绣公馆120㎡户型全案设计预案。从功能尺度到收纳系统,从人体工程学到审美方向,我们围绕“以人为本,量物为准”的理念,完成了系统性居住方案研究。欢迎预约1对1深度解读。
范贤锋
TA的作品
预约设计
预约报名
025-86902171
提交咨询
免费咨询电话:
025-86902171
×
预约报名
尊享专属设计方案规划
请输入您的电话
提交咨询